149 999 000 Ft
195 m2 alapterület | 5 szobaEladó lakás | 2481. Fejér megye, Velence (Velence) , Karnevál körút
Kérdésed van? Lépj velünk kapcsolatba!
Nagy Zoltán
Irodavezető
Kapcsolat típusa: Email Telefon Mindkettő
Adatok
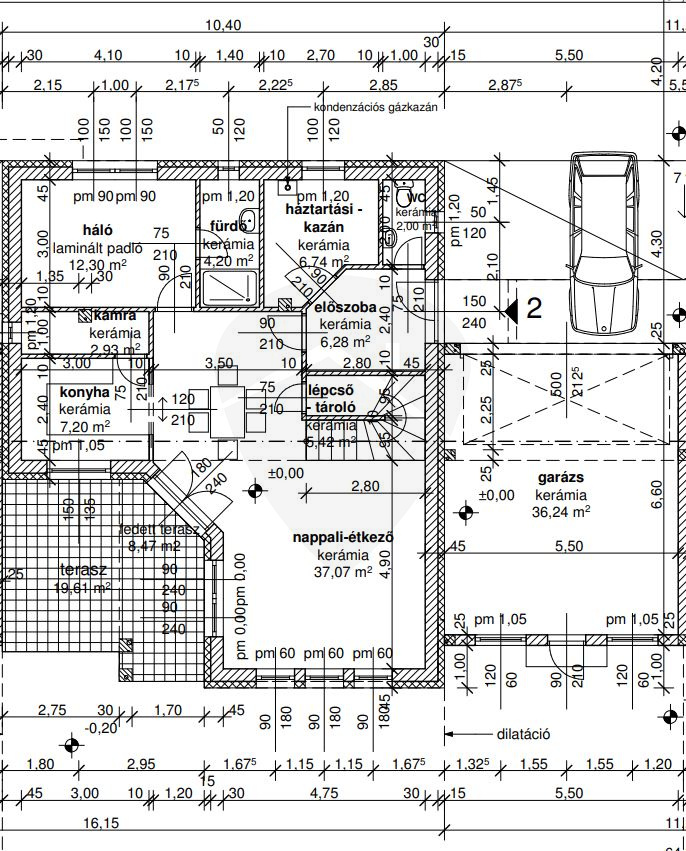
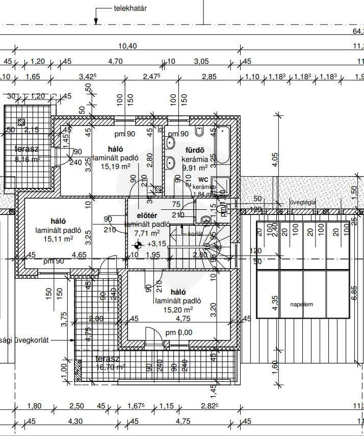
Típus: Eladó LakásÉpítés módja: Tégla
Méret: 195 m2
Szobák száma: 5 szoba
Fürdőszobák száma: 2
Fűtés: Hőszivattyú
Terasz: 52 m2
Emelet: kat përdhes
Épületszint: 2
Ingatlan állapota:
Építési év: 2024
Energetikai besorolás: 1
Részletek
Lift: nincsKilátás: Udvari
Tájolás: D
Belmagasság: 3_meternel_alacsonyabb cm
Garázs: Benne van az árban
Tároló:
Közmű: Gáz, Villany,
Ház/homlokzat állapota: Kiváló
Lépcsőház állapota: Kiváló
Lépcsőház jellege: Zárt lépcsőházas
Leírás
Velence új lakóingatlanok! Élvezd a nyugalmat és a természetet Fejér megyében!
Egy újépítésű lakás 4 lakásos társasházban saját 227 nm privát kerttel került eladásra Fejér megyében, Velencén, a felkapott Nadapi úton. Az ingatlan 154 nm lakóterületből, 36 nm dupla garázsból, és 52 nm teraszból áll.
TERVEZETT ÁTADÁS 2024.07.15.
A kivitelező kizárólag magas minőségű anyagfelhasználással dolgozik, hószivattyús technológia, minden helyiségben padlófűtés és légkondicionálás külön termosztáttal.Részletes műszaki tartalomért forduljon hozzám bizalommal.
Ez a modern és exkluzív ingatlan egyedi tervezésű, és minden olyan funkcióval rendelkezik, amelyet egy család igényelhet. Az ingatlan állapota új építésű, és minden részletre figyeltek a tervezés során. A lakóterület összesen 5 szobával és 2 fürdőszobával egy külön WC vel és egy mosókonyhával rendelkezik. Az ingatlan központi elhelyezkedése miatt könnyen elérhető minden fontosabb helyszín a környéken. A kertvárosi lakás csendes környezetben található, így a nyugodt életet keresők számára ideális választás. A hőszivattyúval fűtött és légkondicionált ingatlan egyedi tervezése és modern kialakítása miatt kiváló választás azok számára, akik egy kivételes otthont keresnek. Az ingatlan környezete biztonságos és csendes, így a családok számára ideális választás. A környék előnyös adottságai közé tartozik a kitűnő közlekedés, amely lehetővé teszi az ingatlantulajdonosok számára, hogy azonnal elérjék az M7 autópályát is.. A közeli tömegközlekedési lehetőségeknek köszönhetően az ingatlan könnyen megközelíthető.
Az ingatlan bemutatása után szeretnénk megemlíteni, hogy minden kérdéssel és észrevétellel kapcsolatban bizalommal fordulhatnak hozzánk. Az ügyfelek számára fontos, hogy megfelelő információkkal rendelkezzenek, és mi mindent megteszünk azért, hogy segítsünk nekik a legjobb döntés meghozatalában. Ha szeretné megtekinteni az ingatlant, vagy bármilyen kérdése van, kérjük, vegye fel velünk a kapcsolatot.


















